
Ranchers
Reimagine the luxury of single-storey living.
Overview
Built using our proprietary panel system for a refined architectural aesthetic, our Ranchers offer five thoughtfully planned layouts ranging from 1000 to 1700 ft². Each single-storey design balances simplicity and spaciousness, giving us room to shape every detail, from natural light and circulation to functional flow and furniture placement.
Features
options
services
Models
Models
R5

Welcome to the R5
Compact and considered, the R5 is designed for those who value quality over quantity. At 970 sq. ft., this two-bedroom prefab home is ideal for couples, empty nesters, or vacation property owners looking for a low-maintenance, high-design retreat without compromise
AREA
970
Sqft
BEDROOMS
2
BATHROOMS
2
R5

Welcome to the R5
Compact and considered, the R5 is designed for those who value quality over quantity. At 970 sq. ft., this two-bedroom prefab home is ideal for couples, empty nesters, or vacation property owners looking for a low-maintenance, high-design retreat without compromise
AREA
970
Sqft
BEDROOMS
2
BATHROOMS
2
R5

Welcome to the R5
Compact and considered, the R5 is designed for those who value quality over quantity. At 970 sq. ft., this two-bedroom prefab home is ideal for couples, empty nesters, or vacation property owners looking for a low-maintenance, high-design retreat without compromise
AREA
970
Sqft
BEDROOMS
2
BATHROOMS
2
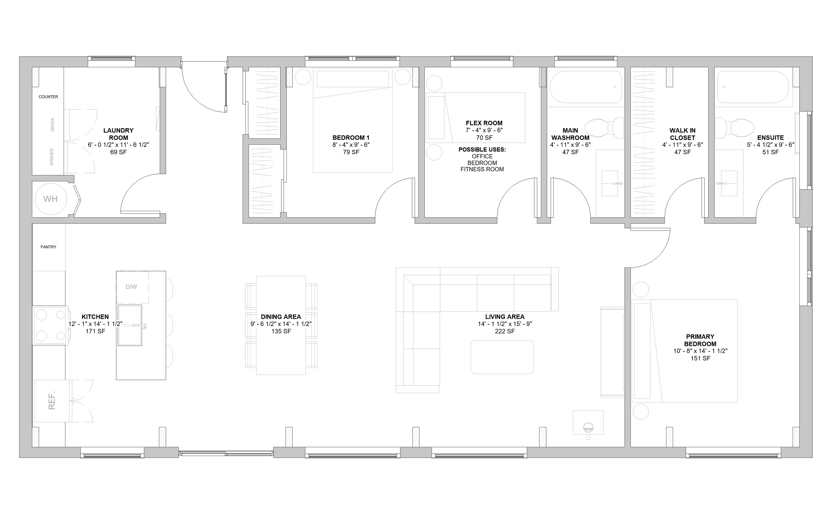
R6

Welcome to the R6
The R6 adds breathing room without adding complexity. The flex space adapts to your life — a home office, guest room, or creative studio — making this 1,162 sq. ft. layout a smart fit for remote workers, young families, or anyone who needs a home that grows with them.
AREA
1,162
Sqft
BEDROOMS
2
+ Flex Space
BATHROOMS
2
R6

Welcome to the R6
The R6 adds breathing room without adding complexity. The flex space adapts to your life — a home office, guest room, or creative studio — making this 1,162 sq. ft. layout a smart fit for remote workers, young families, or anyone who needs a home that grows with them.
AREA
1,162
Sqft
BEDROOMS
2
+ Flex Space
BATHROOMS
2
R6

Welcome to the R6
The R6 adds breathing room without adding complexity. The flex space adapts to your life — a home office, guest room, or creative studio — making this 1,162 sq. ft. layout a smart fit for remote workers, young families, or anyone who needs a home that grows with them.
AREA
1,162
Sqft
BEDROOMS
2
+ Flex Space
BATHROOMS
2
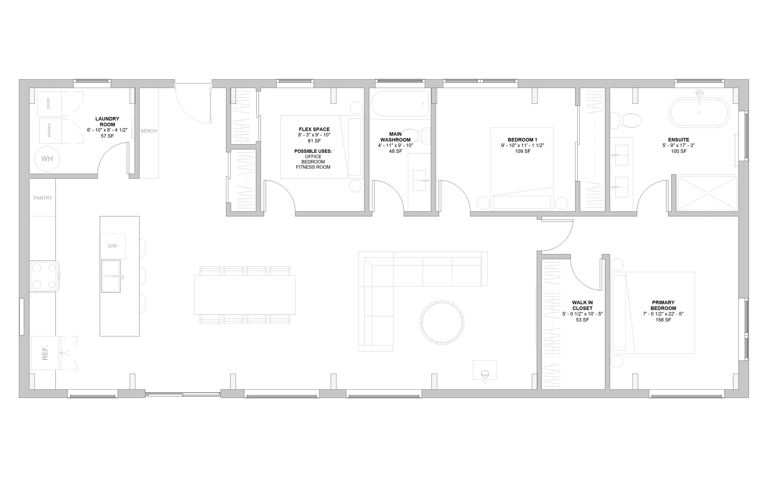
R7

Welcome to the R7
Versatile and well-proportioned, the R7 strikes the balance between efficiency and livability. The additional flex space gives households room to define how they live, whether that's a dedicated workspace, hobby room, or quiet retreat.
AREA
1,345
Sqft
BEDROOMS
2
+ Flex Space
BATHROOMS
2
R7

Welcome to the R7
Versatile and well-proportioned, the R7 strikes the balance between efficiency and livability. The additional flex space gives households room to define how they live, whether that's a dedicated workspace, hobby room, or quiet retreat.
AREA
1,345
Sqft
BEDROOMS
2
+ Flex Space
BATHROOMS
2
R7

Welcome to the R7
Versatile and well-proportioned, the R7 strikes the balance between efficiency and livability. The additional flex space gives households room to define how they live, whether that's a dedicated workspace, hobby room, or quiet retreat.
AREA
1,345
Sqft
BEDROOMS
2
+ Flex Space
BATHROOMS
2
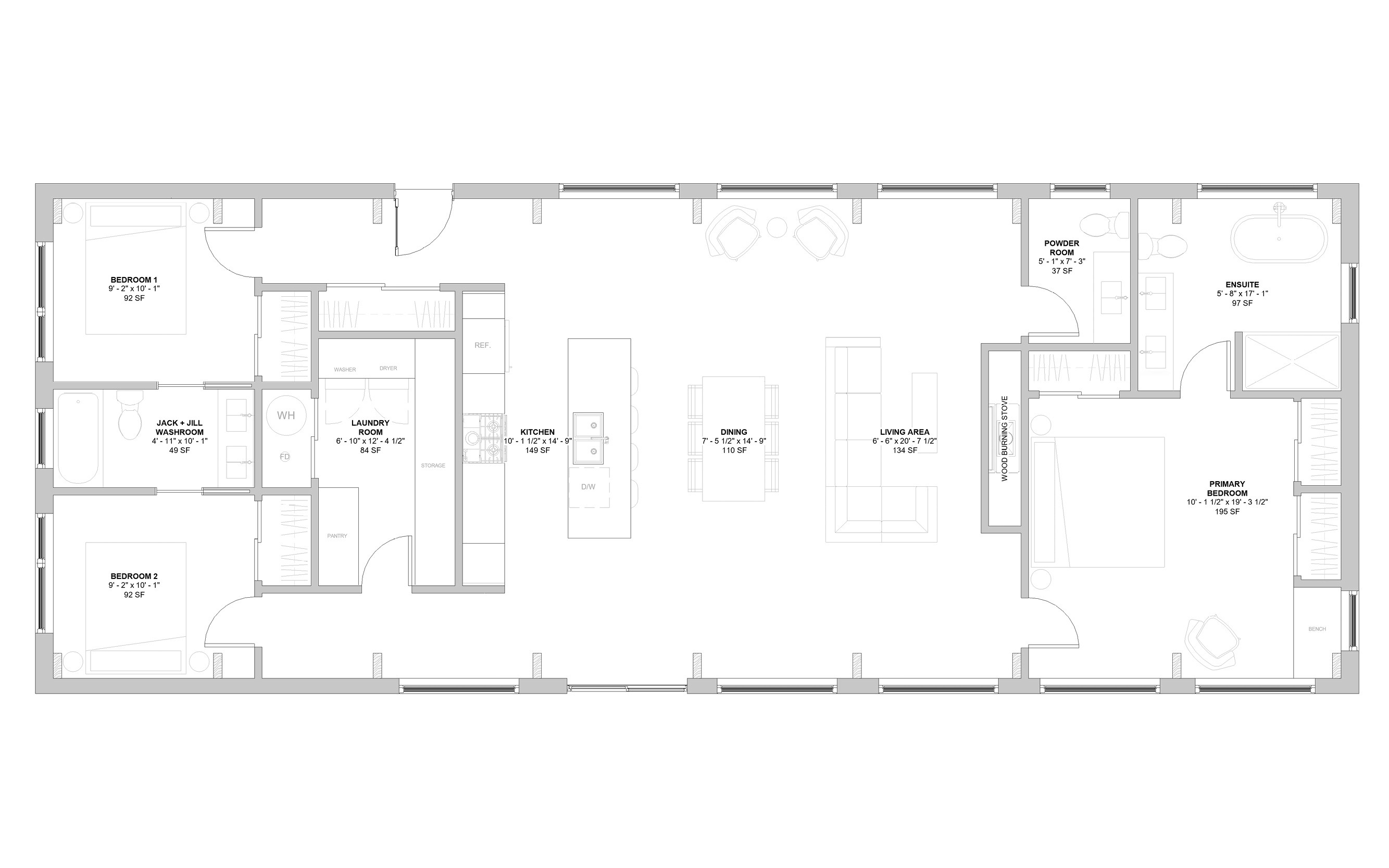
R8

Welcome to the R8
With three bedrooms and a thoughtfully scaled footprint, the R8 is built for full-time family living. At 1,540 sq. ft., it offers the space and layout needed for everyday life — designed with the same architectural precision and healthy building standards Blend brings to every home.
AREA
1,540
Sqft
BEDROOMS
3
BATHROOMS
2.5
R8

Welcome to the R8
With three bedrooms and a thoughtfully scaled footprint, the R8 is built for full-time family living. At 1,540 sq. ft., it offers the space and layout needed for everyday life — designed with the same architectural precision and healthy building standards Blend brings to every home.
AREA
1,540
Sqft
BEDROOMS
3
BATHROOMS
2.5
R8

Welcome to the R8
With three bedrooms and a thoughtfully scaled footprint, the R8 is built for full-time family living. At 1,540 sq. ft., it offers the space and layout needed for everyday life — designed with the same architectural precision and healthy building standards Blend brings to every home.
AREA
1,540
Sqft
BEDROOMS
3
BATHROOMS
2.5
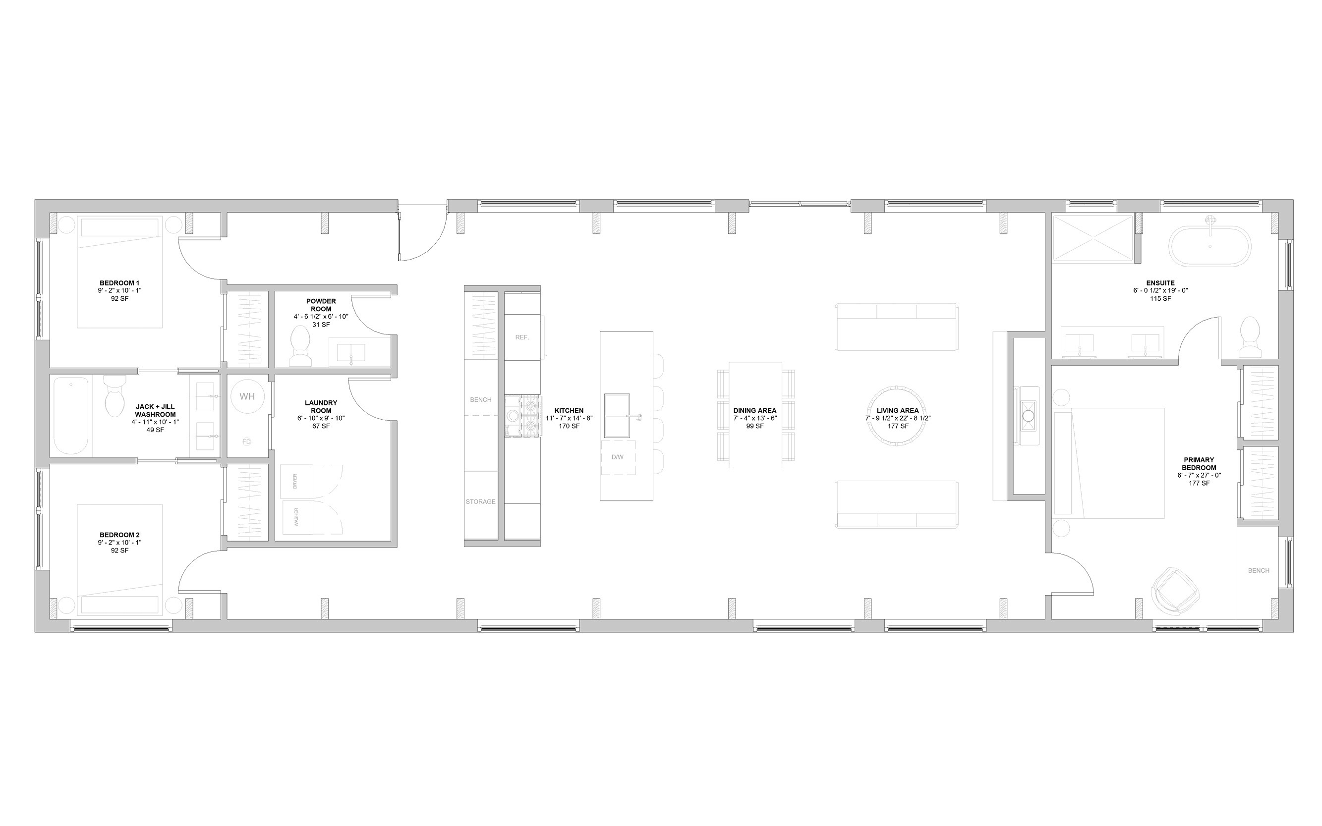
R9

Welcome to the R9
The R9 is our most expansive Rancher — a 1,730 sq. ft. single-storey home designed for families who want generous, open living without going vertical. Its single-floor layout makes it an ideal aging-in-place home, offering long-term accessibility and comfort without sacrificing design.
AREA
1,730
Sqft
BEDROOMS
3
BATHROOMS
2.5
R9

Welcome to the R9
The R9 is our most expansive Rancher — a 1,730 sq. ft. single-storey home designed for families who want generous, open living without going vertical. Its single-floor layout makes it an ideal aging-in-place home, offering long-term accessibility and comfort without sacrificing design.
AREA
1,730
Sqft
BEDROOMS
3
BATHROOMS
2.5
R9

Welcome to the R9
The R9 is our most expansive Rancher — a 1,730 sq. ft. single-storey home designed for families who want generous, open living without going vertical. Its single-floor layout makes it an ideal aging-in-place home, offering long-term accessibility and comfort without sacrificing design.
AREA
1,730
Sqft
BEDROOMS
3
BATHROOMS
2.5
COMPLETED RANCHERS
COMPLETED RANCHERS
Ready to take the next step? let's connect
Ready to take the next step? let's connect
Ready to take the next step? let's connect

Stay up to date
© Blend Projects 2026
Stay up to date
© Blend Projects 2026
















