
Two-Storey
Experience the flexibility of two-level living.
Overview
Built with the same proprietary panel system and refined architectural aesthetic as our Ranchers, our Two-Storey homes offer expanded flexibility across three plans: 1200, 1500, and 1800 ft². Each features a pre-designed layout that gives you room to shape every detail—whether you need an office, a studio, a spare bedroom, or space to grow.
Features
options
services
Models
Models
1200

Welcome to the 1200
The 1200 is where smart design meets two-level living. At 1,255 sq. ft. plus a covered deck, this two-bedroom prefab home is ideal for couples or small families who want the feel of a full home without the footprint. The den adapts easily to a home office, guest space, or creative room — and the covered deck extends your living outdoors year-round.
AREA
1,255 + 175
Sqft covered deck
BEDROOMS
2
+ Den
BATHROOMS
2
1200

Welcome to the 1200
The 1200 is where smart design meets two-level living. At 1,255 sq. ft. plus a covered deck, this two-bedroom prefab home is ideal for couples or small families who want the feel of a full home without the footprint. The den adapts easily to a home office, guest space, or creative room — and the covered deck extends your living outdoors year-round.
AREA
1,255 + 175
Sqft covered deck
BEDROOMS
2
+ Den
BATHROOMS
2
1200

Welcome to the 1200
The 1200 is where smart design meets two-level living. At 1,255 sq. ft. plus a covered deck, this two-bedroom prefab home is ideal for couples or small families who want the feel of a full home without the footprint. The den adapts easily to a home office, guest space, or creative room — and the covered deck extends your living outdoors year-round.
AREA
1,255 + 175
Sqft covered deck
BEDROOMS
2
+ Den
BATHROOMS
2
1500

Welcome to the 1500
The 1500 strikes the perfect balance between space and simplicity. Two bedrooms, a den, and a covered deck give you room to live, work, and host — all within a two-storey custom prefab layout designed to flex with your needs. A natural fit for growing families who want a home that works for them today, tomorrow, and ten years from now.
AREA
1,525 + 175
Sqft covered deck
BEDROOMS
2
+ Den
BATHROOMS
2.5
1500

Welcome to the 1500
The 1500 strikes the perfect balance between space and simplicity. Two bedrooms, a den, and a covered deck give you room to live, work, and host — all within a two-storey custom prefab layout designed to flex with your needs. A natural fit for growing families who want a home that works for them today, tomorrow, and ten years from now.
AREA
1,525 + 175
Sqft covered deck
BEDROOMS
2
+ Den
BATHROOMS
2.5
1500

Welcome to the 1500
The 1500 strikes the perfect balance between space and simplicity. Two bedrooms, a den, and a covered deck give you room to live, work, and host — all within a two-storey custom prefab layout designed to flex with your needs. A natural fit for growing families who want a home that works for them today, tomorrow, and ten years from now.
AREA
1,525 + 175
Sqft covered deck
BEDROOMS
2
+ Den
BATHROOMS
2.5
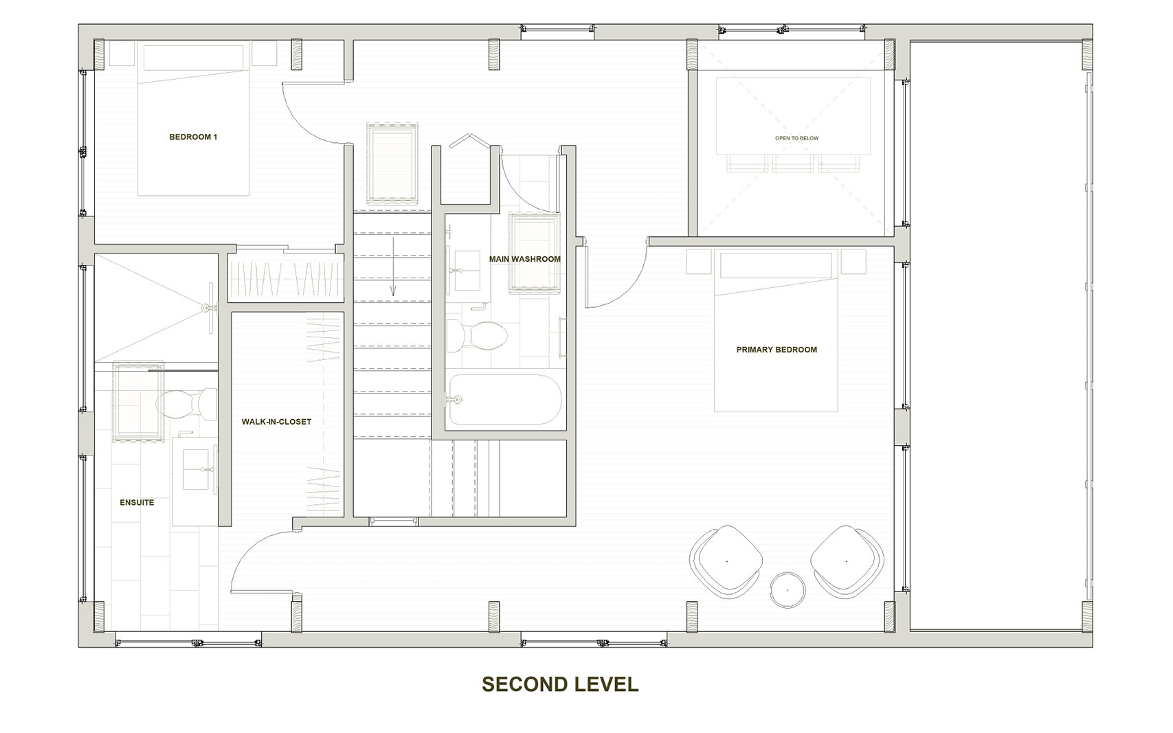
1800

Welcome to the 1800
The 1800 is our most complete two-storey offering — three bedrooms, a den, and a generous covered deck across 1,765 sq. ft. of refined, design-led space. Built for families who want room to grow, work, and gather, it brings the architectural precision of Blend's panel system to a layout that feels anything but prefab.
AREA
1,765 + 175
Sqft covered deck
BEDROOMS
3
+ Den
BATHROOMS
2.5
1800

Welcome to the 1800
The 1800 is our most complete two-storey offering — three bedrooms, a den, and a generous covered deck across 1,765 sq. ft. of refined, design-led space. Built for families who want room to grow, work, and gather, it brings the architectural precision of Blend's panel system to a layout that feels anything but prefab.
AREA
1,765 + 175
Sqft covered deck
BEDROOMS
3
+ Den
BATHROOMS
2.5
1800

Welcome to the 1800
The 1800 is our most complete two-storey offering — three bedrooms, a den, and a generous covered deck across 1,765 sq. ft. of refined, design-led space. Built for families who want room to grow, work, and gather, it brings the architectural precision of Blend's panel system to a layout that feels anything but prefab.
AREA
1,765 + 175
Sqft covered deck
BEDROOMS
3
+ Den
BATHROOMS
2.5
Two-storey projects
Two-storey projects
Ready to take the next step? let's connect
Ready to take the next step? let's connect
Ready to take the next step? let's connect

Stay up to date
© Blend Projects 2026
Stay up to date
© Blend Projects 2026





















